杉並区高円寺南3丁目 中古一戸建
築年数 築12年
総階数2階建
- 高円寺南3丁目
-
- 東京メトロ丸ノ内線 新高円寺 徒歩5分
JR中央線 高円寺 徒歩10分
- 東京メトロ丸ノ内線 新高円寺 徒歩5分
掲載物件1件
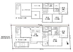
| 間取り図 | 階 | 価格 | 間取/面積 | ||
|---|---|---|---|---|---|
|
-
|
11,800.0万円 |
4LDK
87.62m2 |
||

























































































































































































































































