豊川市本野ケ原4丁目 戸建
築年数 築19年
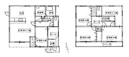
総階数2階建
- 本野ケ原4丁目9-2
-
- JR飯田線 三河一宮 徒歩18分
JR飯田線 豊川 徒歩32分
- JR飯田線 三河一宮 徒歩18分
掲載物件1件
| 間取り図 | 階 | 価格 | 間取/面積 | ||
|---|---|---|---|---|---|
|
-
|
2,260.0万円 |
5LDK
110.96m2 |
||
















































































































































































































































































