サンライズ伊奈
築年数 築48年
総階数8階建
- 北足立郡伊奈町大字小室2268-148
-
- JR東北本線 蓮田 徒歩14分
埼玉新都市交通 丸山 徒歩24分
- JR東北本線 蓮田 徒歩14分
掲載物件3件
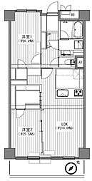
| 間取り図 | 階 | 価格 | 間取/面積 | ||
|---|---|---|---|---|---|
|
2階
|
1,390.0万円 |
3LDK
71.1m2 |
||
|
2階
|
1,390.0万円 |
3LDK
71.1m2 |
||
|
2階
|
1,390.0万円 |
3LDK
71.1m2 |
||






















































































































































































































































































































































































































































































































