室内綺麗な状態の角部屋〜ダイアパレス浦和東岸町〜
築年数 築31年
総階数6階建
- 東岸町
-
- JR京浜東北・根岸線 浦和 徒歩13分
JR武蔵野線 南浦和 徒歩8分
- JR京浜東北・根岸線 浦和 徒歩13分
掲載物件1件
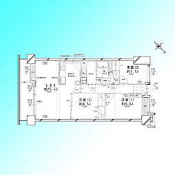
| 間取り図 | 階 | 価格 | 間取/面積 | ||
|---|---|---|---|---|---|
|
4階
|
3,880.0万円 |
3LDK
61.65m2 |
||

































































































































































































































































































