グリーンミユキ中浦和2番館
築年数 築28年
総階数5階建
- 町谷1丁目
-
- JR埼京線 中浦和 徒歩22分
JR埼京線 南与野 徒歩20分
- JR埼京線 中浦和 徒歩22分
掲載物件2件
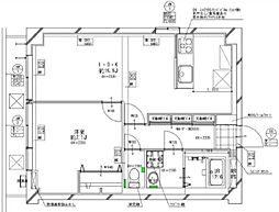
| 間取り図 | 階 | 価格 | 間取/面積 | ||
|---|---|---|---|---|---|
|
5階
|
2,580.0万円 |
3LDK
65.61m2 |
||
|
5階
|
2,580.0万円 |
3LDK
65.61m2 |
||































































































































































































































































































































































































































































































































































