ハイレジデンス朝霧 中古マンション
築年数 築44年
総階数5階建
- 朝霧東町3丁目
-
- JR東海道・山陽本線 朝霧 徒歩9分
山陽電鉄本線 大蔵谷 徒歩14分
- JR東海道・山陽本線 朝霧 徒歩9分
掲載物件1件
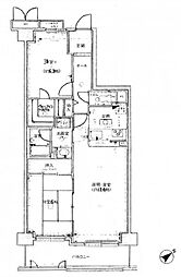
| 間取り図 | 階 | 価格 | 間取/面積 | ||
|---|---|---|---|---|---|
|
2階
|
2,080.0万円 |
4LDK
86.4m2 |
||















































































































































































































































































































































































































