グローバル西明石 中古マンション
築年数 築41年
総階数5階建
- 宮の上
-
- 山陽電鉄本線 林崎松江海岸 徒歩10分
JR東海道・山陽本線 西明石 徒歩25分
- 山陽電鉄本線 林崎松江海岸 徒歩10分
掲載物件1件
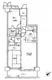
| 間取り図 | 階 | 価格 | 間取/面積 | ||
|---|---|---|---|---|---|
|
1階
|
790.0万円 |
3DK
56.16m2 |
||






























































































































































































































































































































































































































