明石市貴崎5丁目 中古一戸建て
築年数 築51年
総階数2階建
- 貴崎5丁目
-
- 山陽電鉄本線 林崎松江海岸 徒歩7分
JR東海道・山陽本線 西明石 徒歩27分
- 山陽電鉄本線 林崎松江海岸 徒歩7分
掲載物件1件
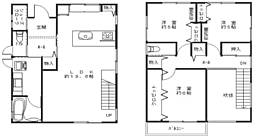
| 間取り図 | 階 | 価格 | 間取/面積 | ||
|---|---|---|---|---|---|
|
-
|
1,080.0万円 |
3DK
56.46m2 |
||






















































































































































































































































































