フォーラムKW
築年数 築28年
総階数3階建
- 大工町
-
- JR東海道・山陽本線 京都 徒歩12分
京都市営烏丸線 京都 徒歩12分
- JR東海道・山陽本線 京都 徒歩12分
掲載物件1件
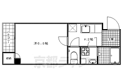
| 間取り図 | 階 | 賃料/管理費等 | 敷金/礼金 | 間取/面積 | |
|---|---|---|---|---|---|
|
2階
|
5.1万円 5,000円 |
敷0.0万円 礼0.0万円 |
1K
26.44m2 |
|
















































































































































































































































































































































































































































































































































































































































































































































































































































