マンションFUKUMI
築年数 築24年
総階数3階建
- 下伊那郡松川町元大島
-
- JR飯田線 伊那大島 徒歩13分
掲載物件4件
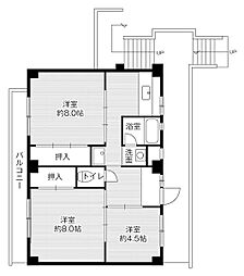
| 間取り図 | 階 | 賃料/管理費等 | 敷金/礼金 | 間取/面積 | |
|---|---|---|---|---|---|
|
1階
|
5.0万円 3,000円 |
敷5.0万円 礼0.0万円 |
1K
31.7m2 |
|
|
2階
|
5.0万円 3,000円 |
敷5.0万円 礼0.0万円 |
1K
31.7m2 |
|
|
2階
|
5.0万円 3,000円 |
敷5.0万円 礼0.0万円 |
1K
31.7m2 |
|
|
1階
|
5.0万円 3,000円 |
敷5.0万円 礼0.0万円 |
1K
31.7m2 |
|
































































































































































































































































































































































































































































































































































































































































