ヴィラージュサントレ
築年数 築31年
総階数3階建
- 西野大手先町
-
- JR東海道・山陽本線 山科 徒歩13分
京阪京津線 京阪山科 徒歩13分
- JR東海道・山陽本線 山科 徒歩13分
掲載物件3件
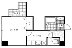
| 間取り図 | 階 | 賃料/管理費等 | 敷金/礼金 | 間取/面積 | |
|---|---|---|---|---|---|
|
3階
|
3.7万円 3,000円 |
敷8.0万円 礼0.0万円 |
1DK
21.64m2 |
|
|
3階
|
3.7万円 3,000円 |
敷8.0万円 礼0.0万円 |
1DK
21.64m2 |
|
|
3階
|
3.7万円 3,000円 |
敷8.0万円 礼0.0万円 |
1DK
21.64m2 |
|






























































































































































































































































































































































































































































































































































































































































































































































































































































































































































































































































































