ライオンズ久米川美彩の杜
築年数 築18年
総階数9階建
- 萩山町5丁目1-1
-
- 西武新宿線 久米川 徒歩4分
掲載物件2件
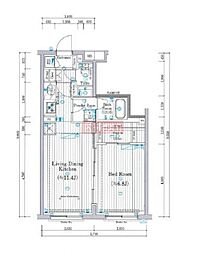
| 間取り図 | 階 | 賃料/管理費等 | 敷金/礼金 | 間取/面積 | |
|---|---|---|---|---|---|
|
2階
|
15.8万円 8,000円 |
敷31.6万円 礼15.8万円 |
3LDK
76.43m2 |
|
|
2階
|
15.8万円 8,000円 |
敷31.6万円 礼15.8万円 |
3LDK
76.43m2 |
|































































































































































































































































































































