エクセレンシア
築年数 築4年
総階数3階建
- 南住吉1-4
-
- 西武池袋線 所沢 徒歩7分
西武新宿線 所沢 徒歩7分
- 西武池袋線 所沢 徒歩7分
掲載物件1件
| 間取り図 | 階 | 賃料/管理費等 | 敷金/礼金 | 間取/面積 | |
|---|---|---|---|---|---|
|
1階
|
11.9万円 10,000円 |
敷0.0万円 礼11.9万円 |
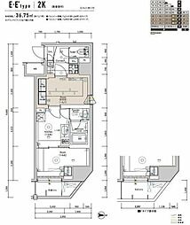
1LDK
45.05m2 |
|




























































































































































































































































































































































































