ルネサンスコート池袋
築年数 築5年
総階数4階建
- 池袋3丁目58-2
-
- 東京メトロ副都心線 池袋 徒歩5分
JR山手線 池袋 徒歩8分
- 東京メトロ副都心線 池袋 徒歩5分
掲載物件2件
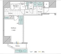
| 間取り図 | 階 | 賃料/管理費等 | 敷金/礼金 | 間取/面積 | |
|---|---|---|---|---|---|
|
2階
|
12.4万円 15,000円 |
敷0.0万円 礼0.0万円 |
1K
26.55m2 |
|
|
2階
|
12.4万円 15,000円 |
敷0.0万円 礼0.0万円 |
1K
26.55m2 |
|











































































































































































































































































































































































































































































































































































































































































