フォーブル小野
築年数 築41年
総階数2階建
- 小野御所ノ内町
-
- 京都地下鉄東西線 小野 徒歩7分
京都地下鉄東西線 椥辻 徒歩17分
- 京都地下鉄東西線 小野 徒歩7分
掲載物件4件
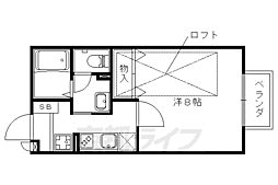
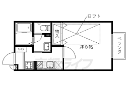
| 間取り図 | 階 | 賃料/管理費等 | 敷金/礼金 | 間取/面積 | |
|---|---|---|---|---|---|
|
2階
|
5.5万円 2,000円 |
敷0.0万円 礼0.0万円 |
2DK
36m2 |
|
|
2階
|
5.5万円 2,000円 |
敷0.0万円 礼0.0万円 |
2DK
36m2 |
|
|
2階
|
5.5万円 2,000円 |
敷0.0万円 礼0.0万円 |
2DK
36m2 |
|
|
2階
|
5.5万円 2,000円 |
敷0.0万円 礼0.0万円 |
2DK
36m2 |
|























































































































































































































































































































































































































































































































































































































































































































































































































































































































