さいたま市浦和区常盤7丁目 中古一戸建て
築年数 築34年
総階数3階建
- 常盤7丁目
-
- JR京浜東北・根岸線 北浦和 徒歩10分
JR京浜東北・根岸線 浦和 徒歩18分
- JR京浜東北・根岸線 北浦和 徒歩10分
掲載物件2件
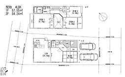
| 間取り図 | 階 | 価格 | 間取/面積 | ||
|---|---|---|---|---|---|
|
-
|
7,990.0万円 |
5LDK
195.13m2 |
||
|
-
|
7,990.0万円 |
5LDK
195.13m2 |
||






















































































































































































































































































































