横浜市栄区本郷台3丁目 中古戸建
築年数 築16年
総階数3階建
- 本郷台3丁目
-
- JR京浜東北・根岸線 本郷台 徒歩15分
JR京浜東北・根岸線 港南台 徒歩44分
- JR京浜東北・根岸線 本郷台 徒歩15分
掲載物件1件
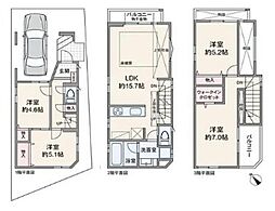
| 間取り図 | 階 | 価格 | 間取/面積 | ||
|---|---|---|---|---|---|
|
-
|
3,980.0万円 |
3LDK
86.93m2 |
||













































































































































































































































