ライオンズマンション浦和東
築年数 築37年
総階数5階建
- 太田窪1丁目
-
- JR京浜東北・根岸線 浦和 バス9分本太坂下下車 徒歩6分
JR東北本線 浦和 バス9分本太坂下下車 徒歩6分
- JR京浜東北・根岸線 浦和 バス9分本太坂下下車 徒歩6分
掲載物件3件
| 間取り図 | 階 | 価格 | 間取/面積 | ||
|---|---|---|---|---|---|
|
2階
|
2,400.0万円 |
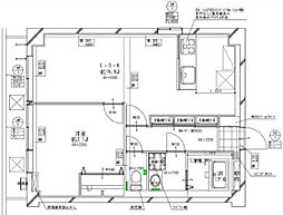
3LDK
61.96m2 |
||
|
2階
|
2,400.0万円 |
2SLDK
61.96m2 |
||
|
2階
|
2,400.0万円 |
2SLDK
61.96m2 |
||
























































































































































































































































































































































































































































































































