藤和調布柴崎コープ 206
築年数 築40年
総階数5階建
- 菊野台1丁目
-
- 京王線 柴崎 徒歩3分
京王線 つつじヶ丘 徒歩15分
- 京王線 柴崎 徒歩3分
掲載物件1件
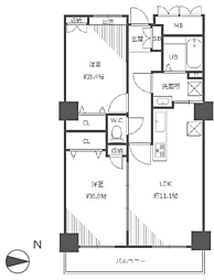
| 間取り図 | 階 | 価格 | 間取/面積 | ||
|---|---|---|---|---|---|
|
2階
|
4,780.0万円 |
3LDK
62.38m2 |
||


































































































































































































































































































































































































































































































































































































































































