コープ野村バードウッド鶴見2番館
築年数 築40年
総階数11階建
- 市場上町
-
- 京急本線 八丁畷 徒歩7分
JR南武線 八丁畷 徒歩7分
- 京急本線 八丁畷 徒歩7分
掲載物件1件
| 間取り図 | 階 | 価格 | 間取/面積 | ||
|---|---|---|---|---|---|
|
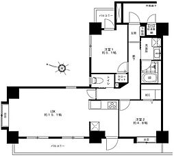
7階
|
4,280.0万円 |
3LDK
68.91m2 |
||


























































































































































































































































































































































































































































































































































































































































































