グランクラッセ上野芝向ヶ丘
築年数 築6年
総階数8階建
- 上野芝向ヶ丘町1丁6-13
-
- JR阪和線 上野芝 徒歩5分
JR阪和線 津久野 徒歩21分
- JR阪和線 上野芝 徒歩5分
掲載物件4件
| 間取り図 | 階 | 価格 | 間取/面積 | ||
|---|---|---|---|---|---|
|
2階
|
3,698.0万円 |
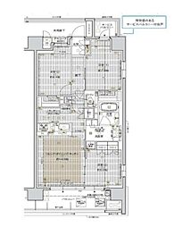
3LDK
74.19m2 |
||
|
2階
|
3,698.0万円 |
3LDK
74.19m2 |
||
|
2階
|
3,698.0万円 |
3LDK
74.19m2 |
||
|
2階
|
3,698.0万円 |
3LDK
74.19m2 |
||


































































































































































































































































































































































































































































































































































