尾久橋スカイハイツ
築年数 築43年
総階数11階建
- 小台1丁目22-2
-
- 日暮里舎人ライナー 足立小台 徒歩4分
都電荒川線 熊野前 徒歩12分
- 日暮里舎人ライナー 足立小台 徒歩4分
掲載物件1件
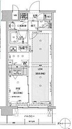
| 間取り図 | 階 | 価格 | 間取/面積 | ||
|---|---|---|---|---|---|
|
1階
|
2,780.0万円 |
3LDK
60.48m2 |
||



















































































































































































































































































































































































































































































































