椿峰ニュータウン48街区2号棟
築年数 築41年
総階数5階建
- 大字山口
-
- 西武狭山線 下山口 徒歩10分
西武山口線 西武園ゆうえんち 徒歩22分
- 西武狭山線 下山口 徒歩10分
掲載物件1件
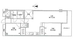
| 間取り図 | 階 | 価格 | 間取/面積 | ||
|---|---|---|---|---|---|
|
3階
|
780.0万円 |
3LDK
78.55m2 |
||



































































































































































































































































































































































































































