豊南町南3丁目テラス
築年数 築57年
総階数2階建
- 豊南町南3丁目
-
- 阪急宝塚本線 庄内 徒歩13分
阪急宝塚本線 三国 徒歩14分
- 阪急宝塚本線 庄内 徒歩13分
掲載物件1件
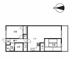
| 間取り図 | 階 | 価格 | 間取/面積 | ||
|---|---|---|---|---|---|
|
-
|
380.0万円 |
4SK
83.24m2 |
||
























































































































































































































































































































































