ローレルスクエア高の原2番館 中古マンション
築年数 築30年
総階数5階建
- 左京2丁目
-
- 近鉄京都線 高の原 バス7分左京六丁目下車 徒歩1分
JR関西本線 平城山 徒歩12分
- 近鉄京都線 高の原 バス7分左京六丁目下車 徒歩1分
掲載物件1件
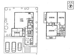
| 間取り図 | 階 | 価格 | 間取/面積 | ||
|---|---|---|---|---|---|
|
3階
|
1,280.0万円 |
3LDK
69.27m2 |
||





















































































































































































