長田区五位ノ池町4丁目
築年数 築50年
総階数2階建
- 五位ノ池町4丁目
-
- 神戸市西神・山手線 板宿 徒歩11分
山陽電鉄本線 板宿 徒歩11分
- 神戸市西神・山手線 板宿 徒歩11分
掲載物件1件
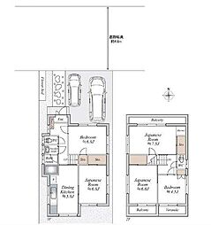
| 間取り図 | 階 | 価格 | 間取/面積 | ||
|---|---|---|---|---|---|
|
-
|
598.0万円 |
3SDK
66.59m2 |
||































































































































































































































































































































































































































































