西蒲田スカイハイツ
築年数 築52年
総階数10階建
- 西蒲田8丁目
-
- JR京浜東北・根岸線 蒲田 徒歩3分
東急池上線 蓮沼 徒歩10分
- JR京浜東北・根岸線 蒲田 徒歩3分
掲載物件1件
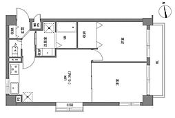
| 間取り図 | 階 | 価格 | 間取/面積 | ||
|---|---|---|---|---|---|
|
2階
|
2,980.0万円 |
1LDK
38.88m2 |
||






























































































































































































































