ガーデンハイツ鎌倉高校前
築年数 築29年
総階数5階建
- 腰越1丁目
-
- 江ノ島電鉄 鎌倉高校前 徒歩5分
江ノ島電鉄 腰越 徒歩12分
- 江ノ島電鉄 鎌倉高校前 徒歩5分
掲載物件1件
| 間取り図 | 階 | 価格 | 間取/面積 | ||
|---|---|---|---|---|---|
|
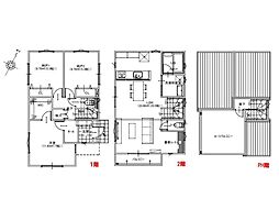
2階
|
3,700.0万円 |
3LDK
77.64m2 |
||





































































































































































































