エミネンス長池南
築年数 築35年
総階数5階建
- 別所2丁目
-
- 京王相模原線 京王堀之内 徒歩5分
小田急多摩線 小田急多摩センター 徒歩29分
- 京王相模原線 京王堀之内 徒歩5分
掲載物件1件
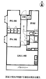
| 間取り図 | 階 | 価格 | 間取/面積 | ||
|---|---|---|---|---|---|
|
4階
|
1,950.0万円 |
3LDK
80.28m2 |
||
























































































































































































































































































































































































