杉並区堀ノ内1丁目 中古戸建
築年数 築40年
総階数2階建
- 堀ノ内1丁目
-
- 東京メトロ丸ノ内線 方南町 徒歩11分
京王井の頭線 永福町 徒歩19分
- 東京メトロ丸ノ内線 方南町 徒歩11分
掲載物件1件
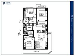
| 間取り図 | 階 | 価格 | 間取/面積 | ||
|---|---|---|---|---|---|
|
-
|
3,980.0万円 |
3LDK
85.04m2 |
||









































































































































































































































































































































































































































































