藤和シティコープ伊奈
築年数 築33年
総階数8階建
- 北足立郡伊奈町本町2丁目
-
- 埼玉新都市交通 志久 徒歩15分
埼玉新都市交通 伊奈中央 徒歩21分
- 埼玉新都市交通 志久 徒歩15分
掲載物件1件
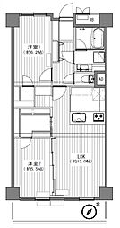
| 間取り図 | 階 | 価格 | 間取/面積 | ||
|---|---|---|---|---|---|
|
1階
|
899.0万円 |
3LDK
70.89m2 |
||














































































































































































































































































































































































































































