グランドワークス上牧
築年数 築18年
総階数2階建
- 神内2丁目9-25
-
- 阪急京都本線 上牧 徒歩5分
JR東海道・山陽本線 島本 徒歩12分
- 阪急京都本線 上牧 徒歩5分
掲載物件4件
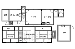
| 間取り図 | 階 | 賃料/管理費等 | 敷金/礼金 | 間取/面積 | |
|---|---|---|---|---|---|
|
2階
|
6.7万円 3,000円 |
敷0.0万円 礼13.4万円 |
1SDK
43.33m2 |
|
|
1階
|
6.7万円 3,000円 |
敷0.0万円 礼13.4万円 |
1DK
43.33m2 |
|
|
2階
|
6.7万円 3,000円 |
敷0.0万円 礼13.4万円 |
1SDK
43.33m2 |
|
|
2階
|
6.7万円 3,000円 |
敷0.0万円 礼13.4万円 |
1SDK
43.33m2 |
|































































































































































































































































































































































































































































































































