一乗寺堂ノ前町貸家17(山本貸家)
築年数 築34年
総階数2階建
- 一乗寺堂ノ前町
-
- 叡山電鉄叡山本線 修学院 徒歩12分
叡山電鉄叡山本線 一乗寺 徒歩14分
- 叡山電鉄叡山本線 修学院 徒歩12分
掲載物件1件
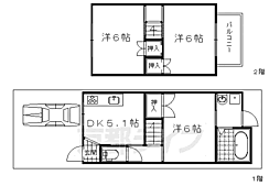
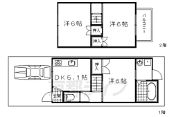
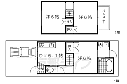
| 間取り図 | 階 | 賃料/管理費等 | 敷金/礼金 | 間取/面積 | |
|---|---|---|---|---|---|
|
-
|
7.5万円 0円 |
敷20.0万円 礼0.0万円 |
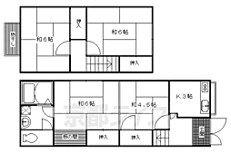
3DK
57.51m2 |
|



























































































































































































































































































































































































































































































































































































































































































































