古谷住宅
築年数 築51年
総階数2階建
- 塩屋
-
- JR赤穂線 播州赤穂 徒歩19分
JR赤穂線 坂越 徒歩55分
- JR赤穂線 播州赤穂 徒歩19分
掲載物件3件
| 間取り図 | 階 | 賃料/管理費等 | 敷金/礼金 | 間取/面積 | |
|---|---|---|---|---|---|
|
1階
|
4.2万円 0円 |
敷4.2万円 礼4.2万円 |
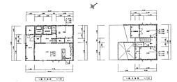
3K
60.62m2 |
|
|
1階
|
4.2万円 0円 |
敷4.2万円 礼4.2万円 |
3K
60.62m2 |
|
|
1階
|
4.2万円 0円 |
敷4.2万円 礼4.2万円 |
3K
60.62m2 |
|






































































































































































