
Kolet東大成町08
築年数 築2年
総階数3階建
- 東大成町2丁目
-
- 埼玉新都市交通 加茂宮 徒歩12分
埼玉新都市交通 鉄道博物館(大成) 徒歩15分
- 埼玉新都市交通 加茂宮 徒歩12分
掲載物件1件
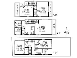
間取り図 | 階 | 賃料/管理費等 | 敷金/礼金 | 間取/面積 | |
---|---|---|---|---|---|
![]() |
1階
|
20.4万円 0円 |
敷20.4万円 礼0.0万円 |
4LDK
99.22m2 |
|