ハレノア横浜反町
築年数 築7年
総階数5階建
- 松本町1丁目5-12
-
- 東急東横線 反町 徒歩2分
京急本線 神奈川 徒歩9分
- 東急東横線 反町 徒歩2分
掲載物件3件
| 間取り図 | 階 | 賃料/管理費等 | 敷金/礼金 | 間取/面積 | |
|---|---|---|---|---|---|
|
3階
|
8.5万円 7,000円 |
敷0.0万円 礼8.5万円 |
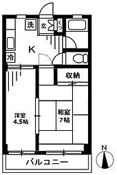
1R
20.26m2 |
|
|
3階
|
8.5万円 7,000円 |
敷0.0万円 礼8.5万円 |
1R
20.26m2 |
|
|
3階
|
8.5万円 7,000円 |
敷0.0万円 礼8.5万円 |
1R
20.26m2 |
|




















































































































































































































































































































































































































































































































