ディック・ベル
築年数 築30年
総階数6階建
- 寺田垣内後
-
- JR奈良線 城陽 徒歩3分
近鉄京都線 寺田 徒歩9分
- JR奈良線 城陽 徒歩3分
掲載物件4件
| 間取り図 | 階 | 賃料/管理費等 | 敷金/礼金 | 間取/面積 | |
|---|---|---|---|---|---|
|
1階
|
8.2万円 8,000円 |
敷8.0万円 礼0.0万円 |
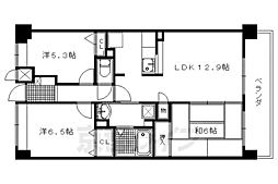
3LDK
67.6m2 |
|
|
1階
|
8.2万円 8,000円 |
敷8.0万円 礼0.0万円 |
3LDK
67.6m2 |
|
|
4階
|
8.7万円 8,000円 |
敷8.0万円 礼0.0万円 |
3LDK
67.6m2 |
|
|
2階
|
8.7万円 8,000円 |
敷8.0万円 礼0.0万円 |
3LDK
67.6m2 |
|






























































































































































































































































































































































































































































































































































































































































































































































































































































































































































































































































































