SEKIEN
築年数 築29年
総階数2階建
- 神楽三条4丁目
-
- JR函館本線 旭川 徒歩14分
JR富良野線 神楽岡 徒歩30分
- JR函館本線 旭川 徒歩14分
掲載物件2件
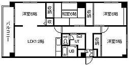
| 間取り図 | 階 | 賃料/管理費等 | 敷金/礼金 | 間取/面積 | |
|---|---|---|---|---|---|
|
2階
|
4.3万円 0円 |
敷4.3万円 礼0.0万円 |
1LDK
36.97m2 |
|
|
2階
|
4.3万円 0円 |
敷4.3万円 礼0.0万円 |
1LDK
38.25m2 |
|
































































































































































































































































































































































































































































































































































