カロス新栄
築年数 築5年
総階数5階建
- 新栄2丁目4321
-
- 名古屋市営東山線 新栄町 徒歩5分
名古屋市営桜通線 高岳 徒歩14分
- 名古屋市営東山線 新栄町 徒歩5分
掲載物件4件
| 間取り図 | 階 | 賃料/管理費等 | 敷金/礼金 | 間取/面積 | |
|---|---|---|---|---|---|
|
3階
|
9.0万円 8,000円 |
敷0.0万円 礼0.0万円 |
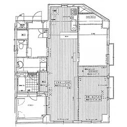
1LDK
42.38m2 |
|
|
3階
|
9.0万円 8,000円 |
敷0.0万円 礼0.0万円 |
1LDK
42.38m2 |
|
|
3階
|
9.0万円 8,000円 |
敷0.0万円 礼0.0万円 |
1LDK
42.38m2 |
|
|
3階
|
9.0万円 8,000円 |
敷0.0万円 礼0.0万円 |
1LDK
42.38m2 |
|































































































































































































































































































































































































































































































