麻布台ヒルズレジデンス
築年数 築3年
総階数53階建
- 麻布台1丁目1-1
-
- 東京メトロ南北線 六本木一丁目 徒歩1分
東京メトロ日比谷線 神谷町 徒歩11分
- 東京メトロ南北線 六本木一丁目 徒歩1分
掲載物件3件
| 間取り図 | 階 | 賃料/管理費等 | 敷金/礼金 | 間取/面積 | |
|---|---|---|---|---|---|
|
9階
|
49.7万円 0円 |
敷99.4万円 礼49.7万円 |
1R
43.58m2 |
|
|
10階
|
65.0万円 0円 |
敷130.0万円 礼65.0万円 |
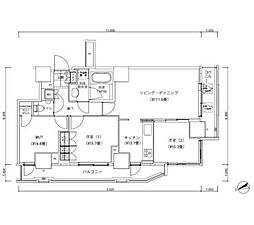
1LDK
53.7m2 |
|
|
9階
|
73.0万円 0円 |
敷146.0万円 礼73.0万円 |
1LDK
60.9m2 |
|









































































































































































































































































































































































































































































































































































