SAN−SIRO
築年数 築25年
総階数4階建
- 岩倉花園町
 - 
														
- 叡山電鉄鞍馬線 八幡前 徒歩5分
京都市営烏丸線 国際会館 徒歩16分 
 - 叡山電鉄鞍馬線 八幡前 徒歩5分
 
掲載物件2件
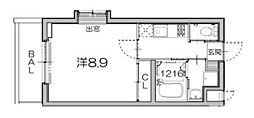
| 間取り図 | 階 | 賃料/管理費等 | 敷金/礼金 | 間取/面積 | |
|---|---|---|---|---|---|
														 
														 | 
													
														 1階 
													 | 
													
														 4.5万円 5,500円  | 
													
														 敷0.0万円 礼4.5万円  | 
													
														 
															1K
																				 
													24.6m2  | 
													|
														 
														 | 
													
														 3階 
													 | 
													
														 4.6万円 5,500円  | 
													
														 敷0.0万円 礼4.6万円  | 
													
														 
															1K
																				 
													27.6m2  | 
													|
														

















														


















											
														




























														




























														




























														



























											
														



























														




























														




























														




























											

























														

























											
														



























														




























														




























														

























											
														



























														




























														




























														




























											
														



























														




























														




























														




























											
														




























														




























														


























														


























											
														



























														




























														




























														




























											
														



























														




























														



























