戸越銀座テラス
築年数 築16年
総階数8階建
- 戸越2丁目
-
- 都営浅草線 戸越 徒歩4分
東急池上線 戸越銀座 徒歩6分
- 都営浅草線 戸越 徒歩4分
掲載物件3件
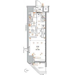
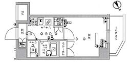
| 間取り図 | 階 | 賃料/管理費等 | 敷金/礼金 | 間取/面積 | |
|---|---|---|---|---|---|
|
3階
|
10.2万円 5,000円 |
敷0.0万円 礼10.2万円 |
1R
23.96m2 |
|
|
3階
|
10.2万円 5,000円 |
敷0.0万円 礼10.2万円 |
1R
23.96m2 |
|
|
3階
|
10.2万円 5,000円 |
敷0.0万円 礼10.2万円 |
1R
23.96m2 |
|































































































































































































































































































































































































































