L・BASE押上South
築年数 築5年
総階数7階建
- 横川2丁目13-4
-
- 東京メトロ半蔵門線 錦糸町 徒歩13分
東京メトロ半蔵門線 押上 徒歩8分
- 東京メトロ半蔵門線 錦糸町 徒歩13分
掲載物件4件
| 間取り図 | 階 | 賃料/管理費等 | 敷金/礼金 | 間取/面積 | |
|---|---|---|---|---|---|
|
4階
|
18.6万円 18,000円 |
敷0.0万円 礼18.6万円 |
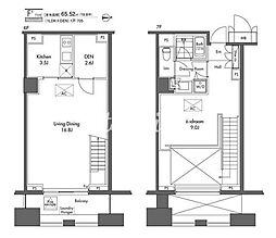
1LDK
40.01m2 |
|
|
4階
|
18.6万円 18,000円 |
敷0.0万円 礼18.6万円 |
1LDK
40.01m2 |
|
|
4階
|
18.6万円 18,000円 |
敷0.0万円 礼18.6万円 |
1LDK
40.01m2 |
|
|
4階
|
18.6万円 18,000円 |
敷0.0万円 礼18.6万円 |
1LDK
40.01m2 |
|








































































































































































































































































































































































































































































































































































































