VENTVERDE Grandside
築年数 築16年
総階数3階建
- 和泉南1丁目
-
- 伊予鉄道横河原線 いよ立花 徒歩27分
伊予鉄道横河原線 石手川公園 徒歩26分
- 伊予鉄道横河原線 いよ立花 徒歩27分
掲載物件4件
| 間取り図 | 階 | 賃料/管理費等 | 敷金/礼金 | 間取/面積 | |
|---|---|---|---|---|---|
|
1階
|
8.3万円 8,000円 |
敷0.0万円 礼0.0万円 |
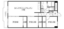
2LDK
59.81m2 |
|
|
1階
|
8.3万円 8,000円 |
敷0.0万円 礼0.0万円 |
2LDK
59.81m2 |
|
|
1階
|
8.3万円 8,000円 |
敷0.0万円 礼0.0万円 |
2LDK
59.81m2 |
|
|
1階
|
8.3万円 8,000円 |
敷0.0万円 礼0.0万円 |
2LDK
59.81m2 |
|




































































































































































































































































































































































































































































































































































































































































































































































































































