DIMORA北千住
築年数 築2年
総階数5階建
- 千住龍田町30-2
-
- JR常磐線 北千住 徒歩14分
京成本線 千住大橋 徒歩14分
- JR常磐線 北千住 徒歩14分
掲載物件4件
| 間取り図 | 階 | 賃料/管理費等 | 敷金/礼金 | 間取/面積 | |
|---|---|---|---|---|---|
|
3階
|
13.4万円 10,000円 |
敷13.4万円 礼0.0万円 |
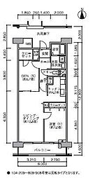
1LDK
37.9m2 |
|
|
3階
|
13.4万円 10,000円 |
敷13.4万円 礼0.0万円 |
1LDK
37.9m2 |
|
|
3階
|
13.4万円 10,000円 |
敷13.4万円 礼0.0万円 |
1LDK
37.9m2 |
|
|
3階
|
13.4万円 10,000円 |
敷13.4万円 礼0.0万円 |
1LDK
37.9m2 |
|




































































































































































































































































































































































































































































































































































































































































