エクレール・やぐら
築年数 築36年
総階数3階建
- 長尾元町7丁目
-
- JR片町線(学研都市線) 長尾 徒歩15分
JR片町線(学研都市線) 藤阪 徒歩32分
- JR片町線(学研都市線) 長尾 徒歩15分
掲載物件2件
| 間取り図 | 階 | 賃料/管理費等 | 敷金/礼金 | 間取/面積 | |
|---|---|---|---|---|---|
|
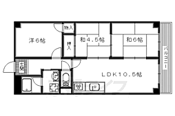
3階
|
6.9万円 0円 |
敷0.0万円 礼10.0万円 |
3LDK
61.6m2 |
|
|
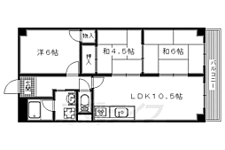
1階
|
6.9万円 0円 |
敷0.0万円 礼10.0万円 |
3LDK
61.6m2 |
|



























































































































































































































































































































































































































































































































































































































