Grandtic Hi(グランティックハイ)
築年数 築6年
総階数2階建
- 奥田西町
-
- JR宇野線 大元 バス0分徒歩12分
岡山電気軌道清輝橋線 清輝橋 徒歩22分
- JR宇野線 大元 バス0分徒歩12分
掲載物件3件
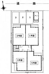
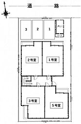
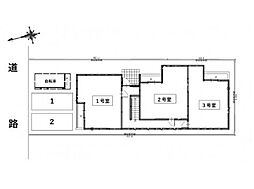
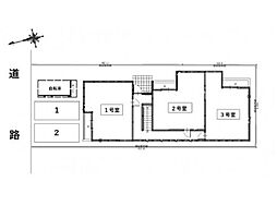
| 間取り図 | 階 | 賃料/管理費等 | 敷金/礼金 | 間取/面積 | |
|---|---|---|---|---|---|
|
2階
|
6.2万円 3,000円 |
敷0.0万円 礼6.2万円 |
1LDK
30.13m2 |
|
|
2階
|
6.2万円 3,000円 |
敷0.0万円 礼6.2万円 |
1LDK
30.13m2 |
|
|
2階
|
6.2万円 3,000円 |
敷0.0万円 礼6.2万円 |
1LDK
30.13m2 |
|



























































































































































































































































































































































































































































































































































































































































































