シャトレ上大橋アクシス
築年数 築4年
総階数2階建
- 江里町
-
- 長崎電気軌道1系統 浦上車庫 徒歩4分
長崎電気軌道1系統 岩屋橋 徒歩6分
- 長崎電気軌道1系統 浦上車庫 徒歩4分
掲載物件1件
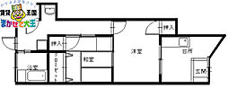
| 間取り図 | 階 | 賃料/管理費等 | 敷金/礼金 | 間取/面積 | |
|---|---|---|---|---|---|
|
2階
|
5.6万円 2,500円 |
敷0.0万円 礼0.0万円 |
1LDK
27.44m2 |
|












































































































































































































































