WEST SIDE(ウエスト サイド)
築年数 築16年
総階数2階建
- 西川2丁目28-1
-
- JR東海道・山陽本線 尼崎 徒歩17分
掲載物件1件
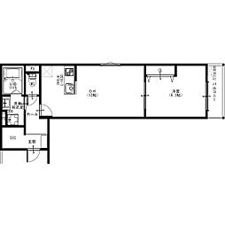
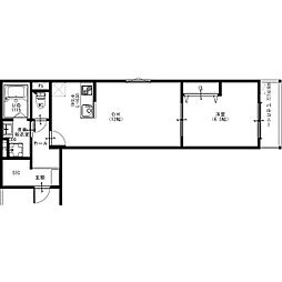
| 間取り図 | 階 | 賃料/管理費等 | 敷金/礼金 | 間取/面積 | |
|---|---|---|---|---|---|
|
1階
|
8.9万円 4,000円 |
敷3.0万円 礼18.0万円 |
1LDK
50.14m2 |
|










































































































































































































































































































































































































































































































































































































































































































