 
											橋本マンション
築年数 築39年
総階数3階建
- 橋本東山本
- 
														- 京阪本線 橋本 徒歩8分
 京阪本線 ケーブル八幡宮口 バス15分京阪橋本下車 徒歩5分
 
- 京阪本線 橋本 徒歩8分
掲載物件1件
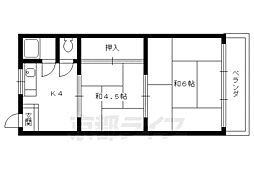
| 間取り図 | 階 | 賃料/管理費等 | 敷金/礼金 | 間取/面積 | |
|---|---|---|---|---|---|
|   | 2階 | 2.6万円 3,500円 | 敷0.0万円 礼5.0万円 | 
															1K
																				 16m2 | |
























 
											 
														














 
											 
														



























 
														




























 
														




























 
														




























 
											 
														



























 
														




























 
														




























 
											 
														


























 
											 
														















 
														
















 
											 
														



























 
														








 
														
















 
														




























 
											 
														



























 
											 
														


























 
											



























 
														




























 
														



























 
														




























